|
MLS #50194275 |
$95,000 |
56401 Laurium Street
CALUMET, MI 49913
|
COUNTY Houghton |
SCHOOL DISTRICT Public Schools of Calumet |
PROPERTY TAX AREA Calumet Twp (31003) |
|
WATERFRONT No |
WATER VIEW |
SHORELINE None |
|
ROAD ACCESS City/County,Paved Street,Year Round |
STATUS Sale Pending w/Contingency |
CATEGORY Residential |
|
REQUEST INFO |
VIEW MAP |
|
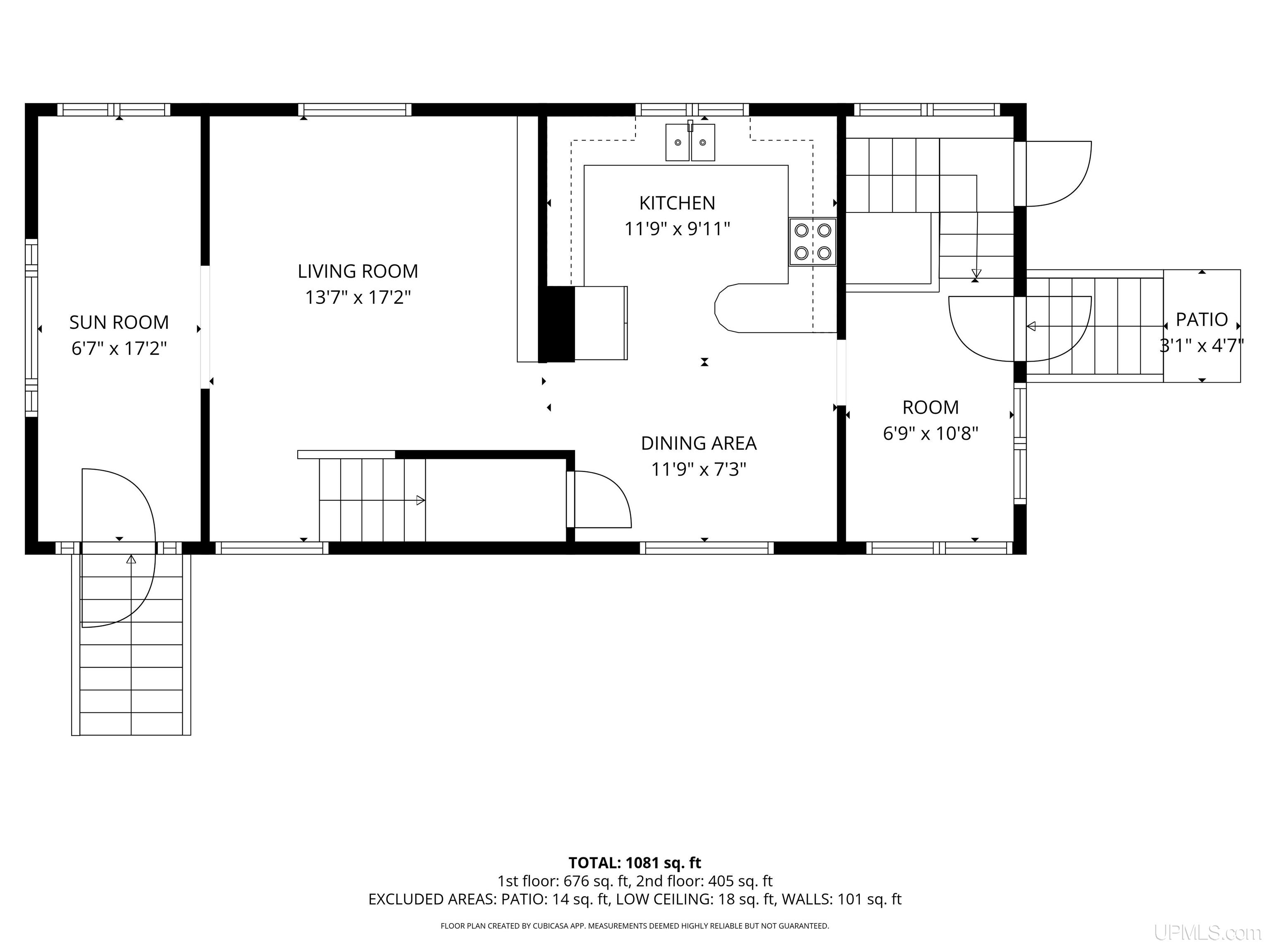
Calumet Township on corner lot. The 2 bedroom 1 bath home includes a one car garage plus workshop. Partially finished basement. Furnishings may be included. Solid bones and ready for your updates. Perfect for investors or DIY buyers.
DETAILS
|
TOTAL BEDROOMS 2.00 |
TOTAL BATHROOMS 2.00 |
EST. SQ. FEET (FINISHED) 1081.00 |
|
ACRES (Approx.) 0.17 |
LOT DIMENSIONS 80x91 |
YEAR BUILT (APPROX.) 1910 |
UTILITIES, HEATING & COOLING
|
HEAT Natural Gas: Forced Air |
SEWER Public Sanitary |
AIR CONDITIONING Ceiling Fan(s) |
|
FEATURES Furnished |
||
ROOM SIZES
|
BEDROOM 1 12x13 |
BEDROOM 2 9x10 |
BEDROOM 3 x |
BEDROOM 4 x |
|
BATHROOM 1 x |
BATHROOM 2 x |
BATHROOM 3 x |
BATHROOM 4 x |
|
LIVING ROOM 13x17 |
FAMILY ROOM x |
DINING ROOM x |
DINING AREA 7x11 |
|
KITCHEN 9x11 |
BUILDING & CONSTRUCTION
|
FOUNDATION Basement |
CONSTRUCTION Cedar |
BASEMENT Yes |
|
GARAGE Detached Garage,Electric in Garage,Gar Door Opener |
EXTERIOR None (ExteriorFeatures) |
FIREPLACE |
|
FEATURES Living Room,Workshop,Basement Lavatory,Second Flr Full Bathroom,Eat-In Kitchen |
||
Listing Office:
Superior Properties -real Estate Sales And Rentals
Listing Agent:
Jokela, Babette
Request More Information
