|
MLS #50195867 |
$149,000 |
This property is a fixer upper with substantial potential for the right buyer. The exterior is in generally respectable condition. The interior features drywall throughout and will likely require full cosmetic renovation including new flooring, drywall repair and paint, and updated kitchen and bathroom spaces. It was originally built in the early 1900s, experienced a fire in 1989, and was rebuilt between 1990 and 1991. Most structural and mechanical components date from that 1990 to 1991 rebuild. Portions of the original stone foundation remain and the concrete floors in the basement may predate the rebuild. The setting is a standout feature. The home is located on a dead end street with only two other visible homes which creates a quiet and private feel. Gratiot River Road is about one half mile up the hill and offers convenient access to Lake Superior, waterfalls, and a wide range of outdoor recreation. Bumbletown has a quaint and charming atmosphere and captures the laid back pace of Keweenaw living. Additional features include a detached wood fired sauna in the yard. In the wooded area behind the home is a small natural depression with water movement which may offer potential for a future pond. All remaining contents and any trash/debris will be included with the sale with the exception of the antique stove in the basement. A propane furnace is on schedule to be installed.
DETAILS
|
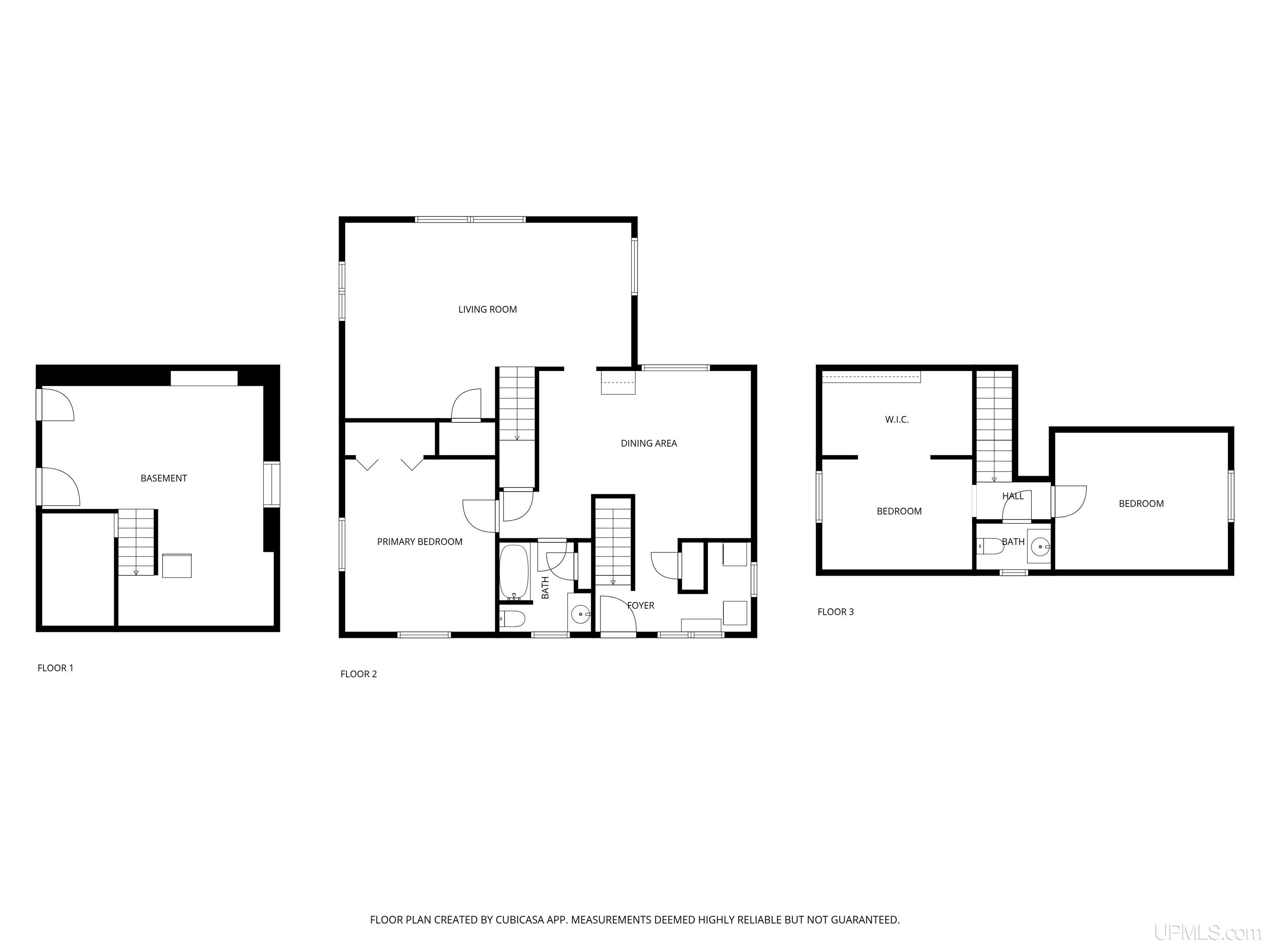
TOTAL BEDROOMS 3.00 |
TOTAL BATHROOMS 2.00 |
EST. SQ. FEET (FINISHED) 1802.00 |
|
ACRES (Approx.) 1.30 |
LOT DIMENSIONS Irregular |
YEAR BUILT (APPROX.) 1991 |
UTILITIES, HEATING & COOLING
|
HEAT LP/Propane Gas: Forced Air |
SEWER Septic |
AIR CONDITIONING None |
|
FEATURES None (InteriorFeatures) |
||
ROOM SIZES
|
BEDROOM 1 13x12 |
BEDROOM 2 8x13 |
BEDROOM 3 9x14 |
BEDROOM 4 x |
|
BATHROOM 1 4x8 |
BATHROOM 2 x |
BATHROOM 3 x |
BATHROOM 4 x |
|
LIVING ROOM 10x18 |
FAMILY ROOM x |
DINING ROOM x |
DINING AREA x |
|
KITCHEN 14x12 |
BUILDING & CONSTRUCTION
|
FOUNDATION Basement,Michigan Basement |
CONSTRUCTION Vinyl Siding |
BASEMENT Yes |
|
GARAGE Detached Garage,Off Street |
EXTERIOR Deck,None (ExteriorFeatures) |
FIREPLACE |
|
FEATURES First Floor Bedroom,First Floor Laundry,Living Room,Primary Bathroom,First Flr Full Bathroom,Second Flr Lavatory,Pantry,Eat-In Kitchen |
||
Listing Office:
Savu Realty
Listing Agent:
Taivalkoski, Adam
Request More Information
